Warszawa | ul. Ząbkowska 14 | 75 m² | parter | duże witryny | Koneser
Model najmu - wsparcie na start
Aby ułatwić rozpoczęcie działalności i adaptację lokalu, właściciel przewidział progresywny model czynszu:
miesiące 1 - 6: 0 zł (wakacje czynszowe na czas wykończenia i adaptacji lokalu. Jedynie czynsz administracyjny około 500 zł i media)
miesiące 7 - 12: 6 500 zł netto (preferencyjna stawka na rozruch biznesu)
od 13. miesiąca : 8 500 zł netto (stawka docelowa)
Stabilność dla biznesu
gwarancja stałego czynszu przez pierwsze 5 lat
waloryzacja wyłącznie o roczny wskaźnik inflacji GUS
Przy umowach długoterminowych powyżej 5 lat po 60 miesiącach przewidziana jest jednorazowa aktualizacja stawki do poziomu rynkowego, co umożliwia kontynuację najmu bez konieczności renegocjowania całej umowy.
Opłaty dodatkowe
opłaty administracyjne - niski czynsz do wspólnoty
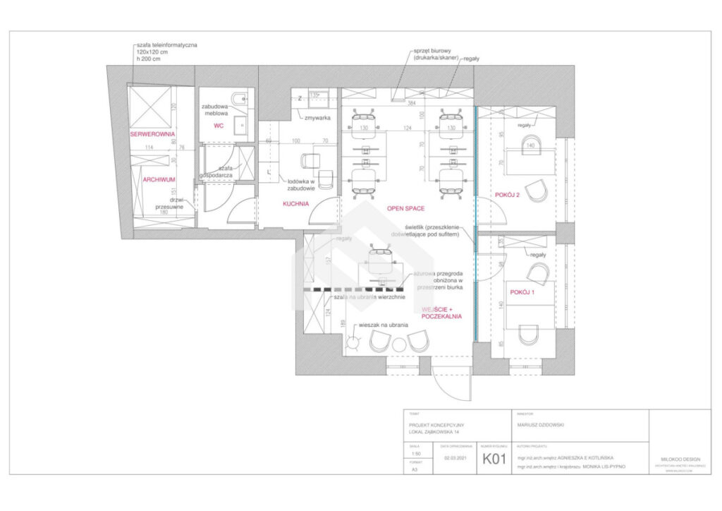
media według zużycia Na wynajem lokal o powierzchni 75 m² w odrestaurowanej kamienicy z 2018 roku, w samym sercu Starej Pragi.
Parter, duże witryny, open space i pełna swoboda aranżacji. To przestrzeń dla firm, które chcą być widoczne i zapamiętywalne.
Lokal jest w stanie deweloperskim - dzięki temu projektujesz wnętrze dokładnie pod swój biznes, bez kompromisów narzuconych przez poprzedniego najemcę.
Dodatkowo dostępny jest gotowy projekt aranżacji biura, który pozwala skrócić czas adaptacji i ograniczyć koszty projektowe.
Adres, który pracuje na Twój biznes. Ząbkowska to jedna z najbardziej klimatycznych i rozpoznawalnych ulic Pragi. W bezpośrednim sąsiedztwie znajdują się kancelarie, pracownie projektowe, gabinety medyczne, gastronomia oraz kompleks Koneser - miejsce z dużym i stałym ruchem klientów.